Welcome to RADUGA chat!.

We will answer you as soon as possible 👇

Callback Open line Telegram MAX

Tubular supports with round flange TSf

ОТф

Select modification
Request a price
The tubular flange supports are characterized by relatively low weight and dimensions, ease of installation, which determines their widespread use in urban lighting systems. Their main purpose is to mount lighting fixtures using brackets, as well as floor lamps and spotlights. The tubular flange supports are mounted on a foundation block pre-installed in a foundation pit and concreted, and secured to the base through mounting holes using studs or bolts. For supports of this series, the supply cable is supplied exclusively underground (version 02).

ATTENTION: the use of supports of this series as load-bearing structures is not allowed!
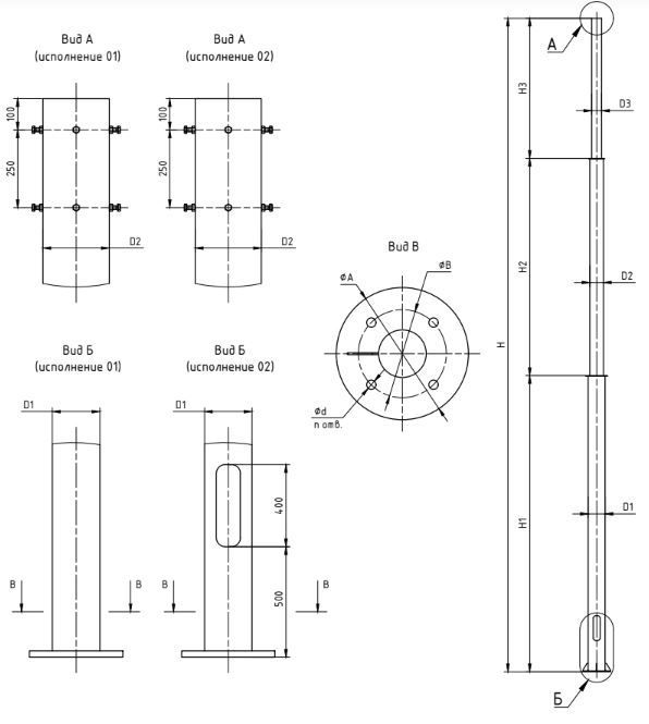
Marking example: TSf(159-133-108)-12.0-02-270-220-4x28-g

TSf – tubular support with round flange
159 – lower support diameter
133 – average support diameter
108 – upper support diameter
12.0 – overall height of the support
02 – internal method of supplying the power cable (aerial supply of the power cable in supports of this type is not allowed)
270 – overall diameter of the connecting flange
220 – center-to-center diameter of the holes in the mating flange
4 – number of holes in the connecting flange
28 – diameter of the connecting flange holes
g – coating by hot-dip galvanizing according to GOST 9.307-2021.
co – powder coating method according to GOST
gco – hot-dip galvanizing + powder coating
Name Support parameters
Масса Ф H H1 H2 H3 D1 D2 D3 d n A B
ОТф(108-57)-1,5-02-190-150-4х20-ц 13,5 Ф1 1500 800 700 - 108 57 - 20 4 190 150
Add to cart
ОТф(108-57)-2,0-02-190-150-4х20-ц 16,5 Ф1 2000 800 1200 - 108 57 - 20 4 190 150
Add to cart
ОТф(108-57)-2,5-02-190-150-4х20-ц 19,5 Ф1 2500 800 1700 - 108 57 - 20 4 190 150
Add to cart
ОТф(108-57)-3,0-02-190-150-4х20-ц 23,5 Ф1 3000 1200 1800 - 108 57 - 20 4 190 150
Add to cart
ОТф(108-57)-3,5-02-190-150-4х20-ц 25,5 Ф1 3500 1200 2300 - 108 57 - 20 4 190 150
Add to cart
ОТф(108-57)-4,0-02-190-150-4х20-ц 28,5 Ф1 4000 1200 2800 - 108 57 - 20 4 190 150
Add to cart
ОТф(133-108)-1,5-02-240-190-4х24-ц 22 Ф6 1500 800 700 - 133 108 - 24 4 240 190
Add to cart
ОТф(133-108)-2,0-02-240-190-4х24-ц 27 Ф6 2000 800 1200 - 133 108 - 24 4 240 190
Add to cart
ОТф(133-108)-2,5-02-240-190-4х24-ц 33 Ф6 2500 800 1700 - 133 108 - 24 4 240 190
Add to cart
ОТф(133-108)-3,0-02-240-190-4х24-ц 39 Ф6 3000 1200 1800 - 133 108 - 24 4 240 190
Add to cart
ОТф(133-108)-3,5-02-240-190-4х24-ц 43 Ф6 3500 1200 2300 - 133 108 - 24 4 240 190
Add to cart
ОТф(133-108)-4,0-02-240-190-4х24-ц 49 Ф6 4000 1200 2800 - 133 108 - 24 4 240 190
Add to cart
ОТф(159-76)-2,5-02-270-220-4х24-ц 29 Ф2 2500 800 1700 - 159 76 - 24 4 270 220
Add to cart
ОТф(159-76)-3,0-02-270-220-4х24-ц 35 Ф2 3000 1200 1800 - 159 76 - 24 4 270 220
Add to cart
ОТф(159-76)-3,5-02-270-220-4х24-ц 38 Ф2 3500 1200 2300 - 159 76 - 24 4 270 220
Add to cart
ОТф(159-76)-4,0-02-270-220-4х24-ц 42 Ф2 4000 1200 2800 - 159 76 - 24 4 270 220
Add to cart
ОТф(159-76)-4,5-02-270-220-4х24-ц 48 Ф2 4500 1500 3000 - 159 76 - 24 4 270 220
Add to cart
ОТф(159-76)-5,0-02-270-220-4х24-ц 51 Ф2 5000 1500 3500 - 159 76 - 24 4 270 220
Add to cart
ОТф(159-76)-5,5-02-270-220-4х24-ц 55 Ф2 5500 1500 4000 - 159 76 - 24 4 270 220
Add to cart
ОТф(159-76)-6,0-02-270-220-4х24-ц 62 Ф2 6000 2000 4000 - 159 76 - 24 4 270 220
Add to cart
ОТф(159-133)-5,0-02-270-220-4х24-ц 78 Ф6 5000 1500 3500 - 159 133 - 24 4 270 220
Add to cart
ОТф(159-133)-6,0-02-270-220-4х24-ц 92 Ф6 6000 2000 4000 - 159 133 - 24 4 270 220
Add to cart
ОТф(159-133)-7,0-02-270-220-4х24-ц 105 Ф6 7000 2000 5000 - 159 133 - 24 4 270 220
Add to cart
ОТф(159-133)-8,0-02-270-220-4х24-ц 118 Ф6 8000 3000 5000 - 159 133 - 24 4 270 220
Add to cart
ОТф(159-133-108)-9,0-02-270-220-4х24-ц 127 Ф6 9000 3000 3500 2500 159 133 108 24 4 270 220
Add to cart
ОТф(159-133-108)-10,0-02-270-220-4х24-ц 149 Ф6 10000 4000 3500 3500 159 133 108 24 4 270 220
Add to cart
ОТф(159-133-108)-11,0-02-270-220-4х28-ц 156 Ф6 11000 6000 2500 2500 159 133 108 24 4 270 220
Add to cart
ОТф(159-133-108)-12,0-02-270-220-4х28-ц 169 Ф6 12000 6000 3500 2500 159 133 108 24 4 270 220
Add to cart

About the product


The supports of this series are designed for utilitarian lighting of any objects. Brackets and adapters for mounting lighting fixtures are installed on the supports. The use of supports of this series as load-bearing structures is strictly prohibited.

Design


The supports of this series are made of high-quality rolled steel pipes - in accordance with GOST 10704-81 from leading Russian manufacturers. The steel grade is selected depending on the climatic region of operation and the load on the support, taking into account the safety factor, in accordance with the current SP 16.13330.2017.

Coating


The anti-corrosion coating is applied by hot-dip galvanizing in accordance with GOST 9.307-2021, which ensures the safety of the product for 25-30 years of operation. The support can be treated with a decorative paint coating (or powder painting, at the request of the customer) in accordance with the requirements of the current GOST 9.032-74. The basic design of the support DOES NOT IMPLY a layer of decorative coating.

Installation of supports


The tubular flange supports of the TSf series are mounted on a foundation block (embedded part) pre-installed in the pit and concreted. The flange supports are connected to the prepared base through mounting holes using studs or bolts.

Installation of lighting equipment


It is possible to install almost any type of the luminaire on the TSf supports, both directly and using brackets. In each case (depending on the customer’s needs), an individual method of connecting the power cable to the lighting fixture is developed.

Method of supplying the power cable


For supports of this series, the supply cable is supplied exclusively underground (version 02). In the basic version, an inspection maintenance hatch is made in the lower part of the support.

The manufacturer reserves the right to make changes that do not impair the quality of the product in the design of individual parts, assemblies and parameters of the lamp without prior notice.

Individual Request

We are constantly expanding our product range so that with the help of RADUGA™ luminaires our customers and partners can find a solution to even the most complex and non-standard tasks.

Order

We are constantly expanding our product range so that with the help of RADUGA™ luminaires our customers and partners can find a solution to even the most complex and non-standard tasks.

Subscribe to newsletter

Submit request

Обучение

Хотите пройти небольше обучение
по конфигуратору?